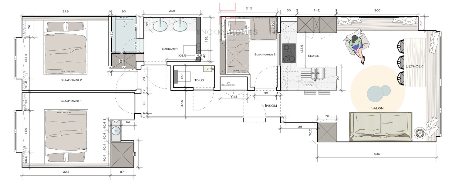
Prachtig gerenoveerd appartement met 3 slaapkamers in Knokke-Zoute, met zijdelings zeezicht. De indeling bestaat uit een inkomhal met vestiaire en aparte wc, een leefruimte met zit- en eethoek, en een volledig geïnstalleerde open keuken. Slaapkamer 1 en 2 zijn geschikt voor een dubbel bed en hebben ingemaakte kasten, terwijl slaapkamer 3 voorzien is van een stapelbed. De badkamer beschikt over een inloopdouche, dubbele lavabo en wc. Aan de achterzijde van het appartement is er een terras.
Meubels inbegrepen.
Info en bezoeken via 050 760 760
| Ref.: | TK766 |
| Transactie: | Te koop |
| Type: | Appartement |
| Algemene staat: | Gerenoveerd |
| Gerenoveerd in: | 2024 |
| Slaapkamer(s): | 3 |
| Bewoonbare opp. m² : | ca. 79 |
| Totale opp. m² : | ca. 79 |
| Beschikbaar: | Bij akte |
| Verdieping: | 3 |
| Lift: | Ja |
| |
| EPC ref.: 3104985 |
| Slaapkamer | 3 |
| Keuken | 1 |
| Badkamer | 2 |
| Zowel een bad- als douchekamer | |
| Woonkamer | 1 |
| Eetkamer | 1 |
| Toilet | 1 |
| Douche | 1 |
| Inkomhal | 1 |
| Elektriciteit |
| Dagvaarding / herstelvordering: | Nee |
| Vergunning: | Ja |
| Bestemming: | Woongebied |
| Voorkooprecht: | Nee |
| Verkavelingsvergunning: | Nee |
| Renovatieverplichting: | Ja |
| Gevoeligheid: | Niet overstromingsgevoelig |
| Zone: | Niet van toepassing |
| G-score | D |
| P-score | D |

naar uzelf, een vriend(in), familie, ...